0
Skip to Content
SPEAKERS
SCHEDULE
TRAVEL
REGISTER
Open Menu
Close Menu
SPEAKERS
SCHEDULE
TRAVEL
REGISTER
Open Menu
Close Menu
SPEAKERS
SCHEDULE
TRAVEL
REGISTER
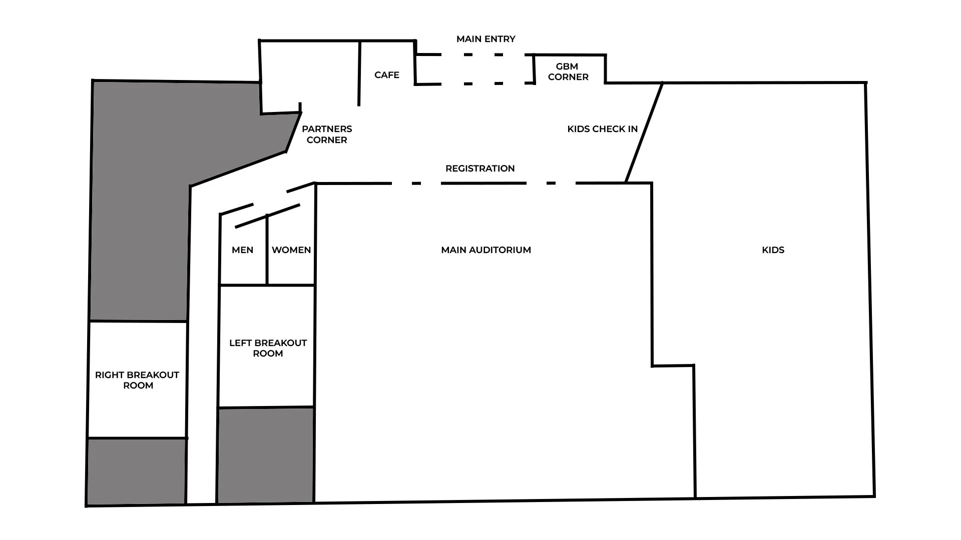
MAIN CAMPUS
NORTH BUILDING